Bodega en Renta en Chalco de Díaz Covarrubias Centro, Chalco, México
BODEGAS EN RENTA ZONA CENTRO CHALCO EDO DE MÉX

Especificaciones
BODEGAS EN RENTA ZONA CENTRO CHALCO EDO DE MÉX
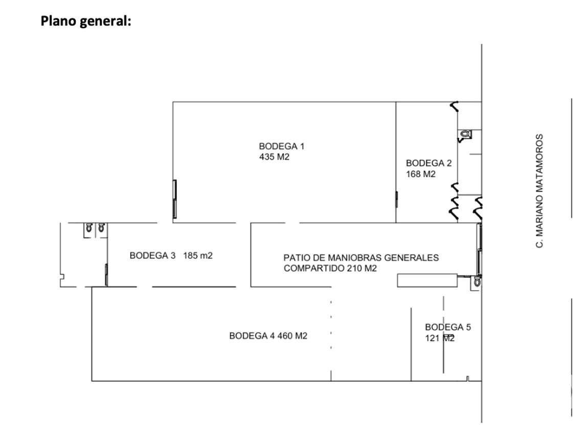
Esta espaciosa bodega en renta se encuentra ubicada en Chalco de Díaz Covarrubias Centro, Chalco, México, con una construcción de 1369 m2 y un uso de suelo comercial ideal para cualquier tipo de negocio. Estas bodegas se conforman de 5, con las siguientes medidas, bodega 1.- 435m2, Bodega 2.- 168m2 ( 1 baño), Bodega 3.- 185m2 (2 baños) Bodega 4.- 460m2, Bodega 5.- 121m2, este inmueble ofrece un amplio espacio para oficinas, almacenamiento, o incluso como espacio habitacional para empleados. Su ubicación céntrica lo convierte en una excelente opción para empresas que buscan expandir sus operaciones en una zona con gran potencial de crecimiento.
Además, esta propiedad se encuentra cerca de importantes zonas de interés como el centro de Chalco, ideal para realizar compras y disfrutar de una amplia variedad de servicios. Asimismo, se encuentra a pocos minutos de parques locales donde se puede disfrutar de actividades al aire libre y de la tranquilidad de la naturaleza. Por otro lado, la ubicación estratégica de esta bodega brinda fácil acceso a importantes vías como la carretera federal México-Cuautla, facilitando la movilidad de mercancías y personal.
En resumen, esta bodega en renta en Chalco de Díaz Covarrubias Centro es una excelente oportunidad para aquellas empresas que buscan un espacio amplio, bien ubicado y adaptable a diversas necesidades comerciales. La superficie de construcción es de 1,369 m2 de construcción, representa una inversión segura y con alto potencial de retorno. No pierdas la oportunidad de expandir tu negocio en esta zona en crecimiento. ¡Contáctanos para agendar una visita!





